夏休み中に各自の設計図を描き、模型をつくり、チェックを受けて前期試験後の補習期間に最終発表会を行う。今はGoogle Classroom に各自が画像データを上げて、9月19日、プロジェクターでのプレゼンを全員が行い、全員で評価採点を行なう。以下、いくつかの優秀作品を紹介したい。延べ床面積はガレージを除いて150m2以下、親子4人家族に祖母が時折宿泊する客間がある住宅を、6戸からなる街区に計画する。今年はまちなみグループとして、洋風、和風、モダン、前庭の4つが揃った。
1 O.Jacson Cage <洋風まちなみグループ>中間発表で紹介した案とそう変わらないが、細部を詰め、模型を作り込んできた。実によく出来ているが、課題で与えられている敷地の10倍くらいのもっと広い敷地に建ててあげたいように思う。<最優秀賞>
2 周 佩儀 <和風まちなみグループ> 台湾からの留学生である周さんも中間発表で紹介した案に磨きをかけて発表。夏休み中に別の案も作成してくれてたのだが、今日的な使いやすい住宅であった。この発表案の豪快な吹き抜けと庭に向かって段々に降り広がっていく空間の豊かさはとても魅力的だ。かなばかり図には構造や納まりの勉強の成果がよくあらわれている。やや屋根の重なりがすっきりしないので、二階一部をもっと高くしてみてはどうかと検討してもらっている。<最優秀賞>
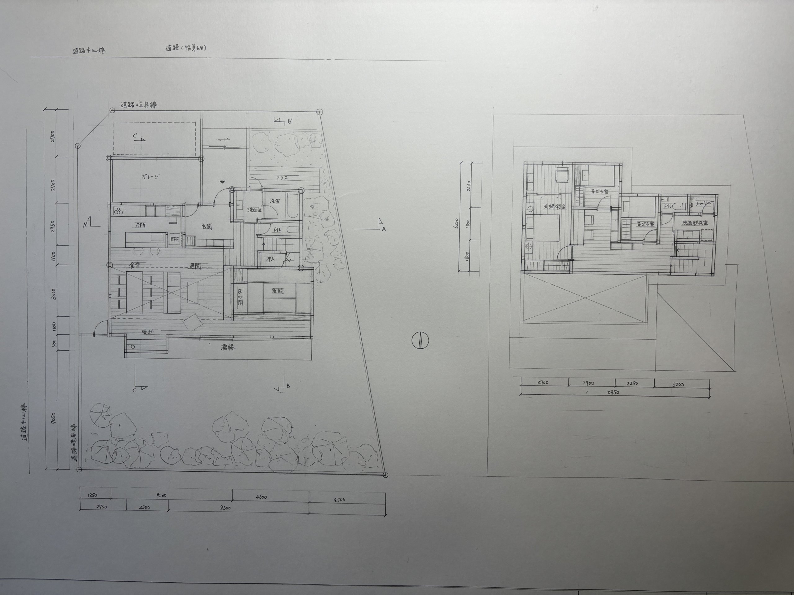
3 松村旺弥 <モダンまちなみグループ> 今年のモダングループはフラットルーフに統一したとのこと。パラペットに防水層立ち上げのフラットルーフは揺れる木造には難しく、昨今はすっかり見なくなった。松村君の案も平面を見れば実によく出来ていて、立面の作り方もいい。模型もよく作り込んである。後々のことを考えて、これを通常の勾配屋根で作り直して欲しいと注文をつけさせてもらった。<入選>
4 西村元徳 <洋風まちなみグループ> このグループでは外壁の色をみんな違えて押し出すという趣旨のようだ。西村君はやや強烈なオレンジの外壁。先のジャクソン君はラベンダー色だとか。西村君らしいそつのない平面。立面はややそっけないが、窓のデザインはいい。ガレージの屋根が威張りすぎているので、これを抑えて欲しいと注文をつけさせてもらった。 <入選>
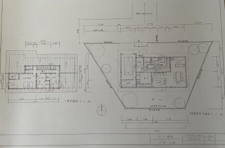
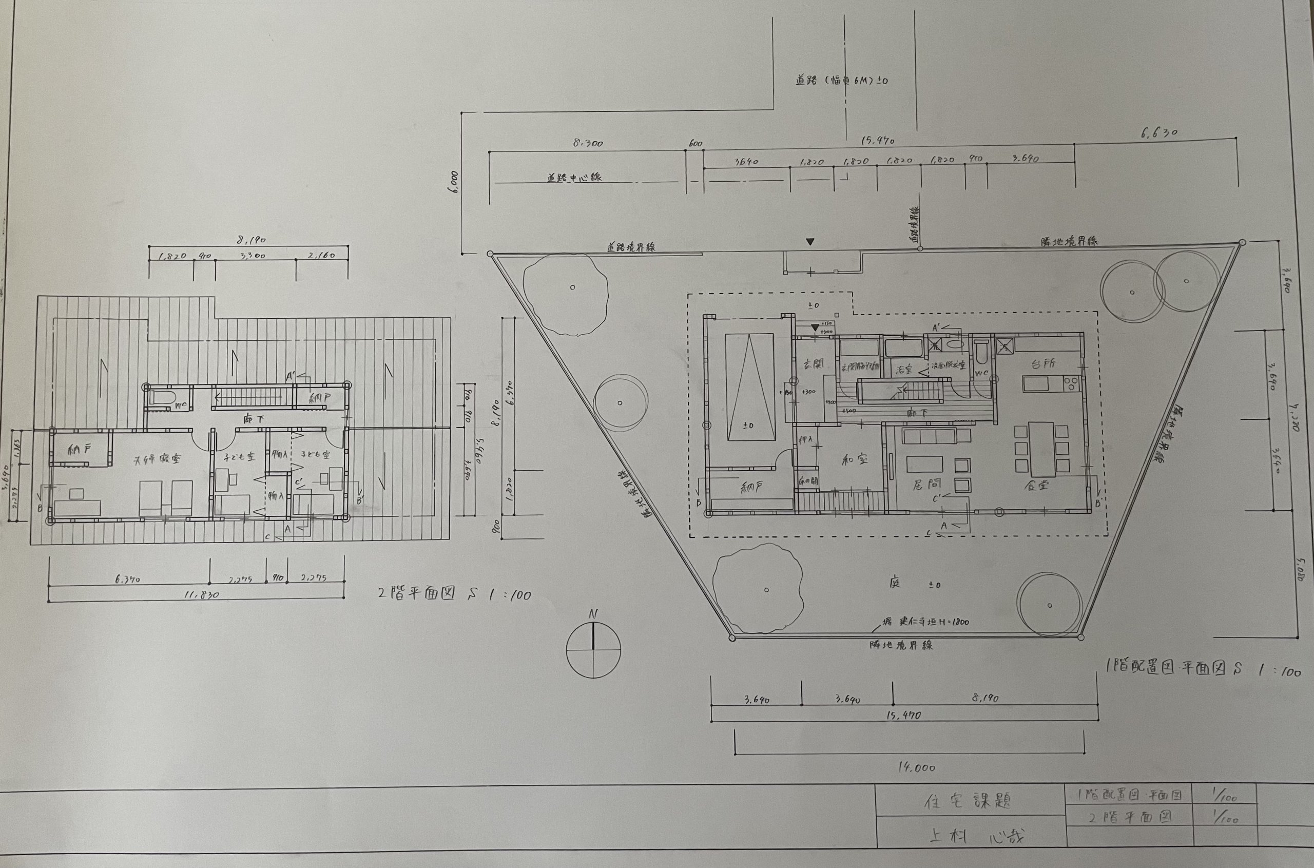
5 上村心哉 <和風まちなみグループ> 上村君の模型がさらりとつくってあってとても美しい。北面正面の2階に小さな覗き窓を作るように注文。ここからは街路全体がよく見えていい眺めが得られるはずだ。立面もその方が親しみが持てるだろう。<入選>
6 今年のベスト6 6戸からなる街区にベスト作品を並べた。上の入選作品5点に吉田朔君の作品が加わっている。
この日に手直しをしてもらいたい者も、まだ完成できていない者も、次の週のうちに完成させて評価の見直しを受けて最終成績となる。またこの時期にきちんとプレゼンボードを作成し、就職活動の具にしてもらいたい。
(さの)



















